物件情報一覧> 昭島市郷地町3丁目戸建
3,680万円

昭島市郷地町3丁目戸建

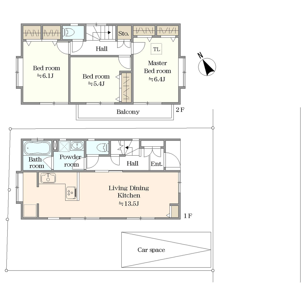
昭島市(西立川駅) 3LDK / 81.14㎡(1階39.74㎡・2階41.4㎡

  • ローンの目安 103,453円/月

  • 管理費 円/月

  • 修繕積立金 円/月

※ローンの目安は、頭金ゼロ、借入年数35 年、都市銀行・変動金利0.975%(優遇利用)を想定。
審査内容により、融資の一部または全部をご利用頂けない場合がございます。予めご了承ください。


    

住所
東京都昭島市郷地町3丁目5-14
アクセス
JR青梅線

西立川」駅ょり徒歩22分
立川バス「立川駅南口」より乗車12分
「富士見町操車場」より下車後徒歩3分
間取り
3LDK
広さ
81.14㎡(1階39.74㎡・2階41.4㎡
バルコニー
構造
木造ストレート葺
階層
地上2階建
総戸数
築年月
2001年8月新築
改装年月
2025年12月
現況
空家
引渡
即時
管理会社
管理方式
土地権利
所有権
その他
取引態様
売主
情報更新日
2025/12/18
CONTACT